Загородный дом Hi283 ind.

Загородный дом Hi283 ind — дом с панорамной гостиной

Архитектура

Размещение дома на склоне располагает к созданию подвального этажа с техническими помещениями. Благодаря разноуровневым перекрытиям на фасадах сформировалась композиция с выраженной доминантой, при этом высота потолков в кухне-гостиной получилась 3.9 метра, а в остальных помещениях 3 метра.

О проекте

  • Площадь - 283м2
  • Количество комнат - 3 комнаты
  • Этажность - 1 этаж

В мастер спальне гардеробная освещается зенитным фонарем, что позволяет сохранить больше мест для хранения вещей не теряя площади стен для окон, но при этом помещение освещено естественным светом.

Отделка дома минималистична, фасады выполнены из клинкерной плитки в сочетании с белой и тёмно-серой штукатуркой.

Мы в хайдом обожаем проектировать в своем стиле уютного минимала. И красиво и по-домашнему приятно.

Полностью закрытая входная группа добавляет изюминки, не правда ли?

Над проектом работали: - Константин Калина - - Ева Чаплинская - - Антон Гордицкий - Натали Глинская - HiDOM*

Планировка

1 этаж

1. Прихожая - 7.6м2

2. Гардеробная - 6.7м2

3. Кладовая - 7.2м2

4. Кухня-гостиная - 61.4м2

5. Коридор - 7.2м2

6. Санузел - 3.4м2

7. Душевая - 3.1м2

8. Постирочная - 8.5м2

9. Кабинет - 15.6м2

10. Гардеробная - 12.7м2

11. Спальня - 18.1м2

12. Санузел - 9.1м2

13. Гараж - 46.8м2

14. Крытая терраса - 11.2м2

15. Крыльцо - 4.2м2

Итого:- 222.8м2

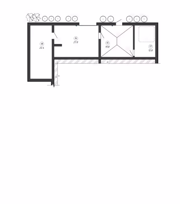
Подвальный этаж

1. Котельная - 19.8м2

2. Хоз. помещение - 27.0м2

3. Хоз. помещение - 12.8м2

4. Хоз. помещение - 22.4м2

Итого:- 82м2

Консультация
по индивидуальному
проектированию.

Или позвоните нам сами +375296283628

Похожие решения.

Загородный дом Hi267 ind.
267m2, 5 комнат, 1 этаж
Загородный дом Hi318
318m2, 5 комнат, 1 этаж
Загородный дом Hi250
250m2, 5 комнат, 1 этаж
Загородный дом Hi238&SPA
238m2, 5 комнат, 1 этаж