Загородный дом Hi238&SPA

Загородный дом Hi238&SPA — проект дома с террасой

Архитектура

Одноэтажный дом с отделкой из белой клинкерной плитки в окружении зелени смотрится максимально эффектно! В композиции фасадов выделяется высокая центральная часть кухни-гостиной, а по бокам от нее разместились навес для автомобиля и крытая терраса. Рядом с прихожей расположена просторная кухня-гостиная с окнами в пол и выходом на террасу. В отдельную жилую зону сгруппированы две детских спальни, кабинет и мастер спальня со своим санузлом и гардеробной.

О проекте

  • Площадь - 238м2
  • Количество комнат - 5 комнат
  • Этажность - 1 этаж

Планировка

1 этаж

1. Прихожая - 9.8м2

2. Гардеробная - 7.1м2

3. Котельная/ постирочная - 9.8м2

4. Гараж - 32.9м2

5. Санузел - 3.9м2

6. Кладовая - 3.2м2

7. Спальня - 10.2м2

8. Санузел - 6.0м2

9. Спальня - 12.1м2

10. Спальня - 12.1м2

11. Санузел - 7.5м2

12. Мастер-спальня - 22.0м2

13. Гардеробная - 5.3м2

14. Кухня-гостиная - 50.1м2

15. Коридор - 18.5м2

16. Терраса - 11.2м2

Итого:- 221.7м2

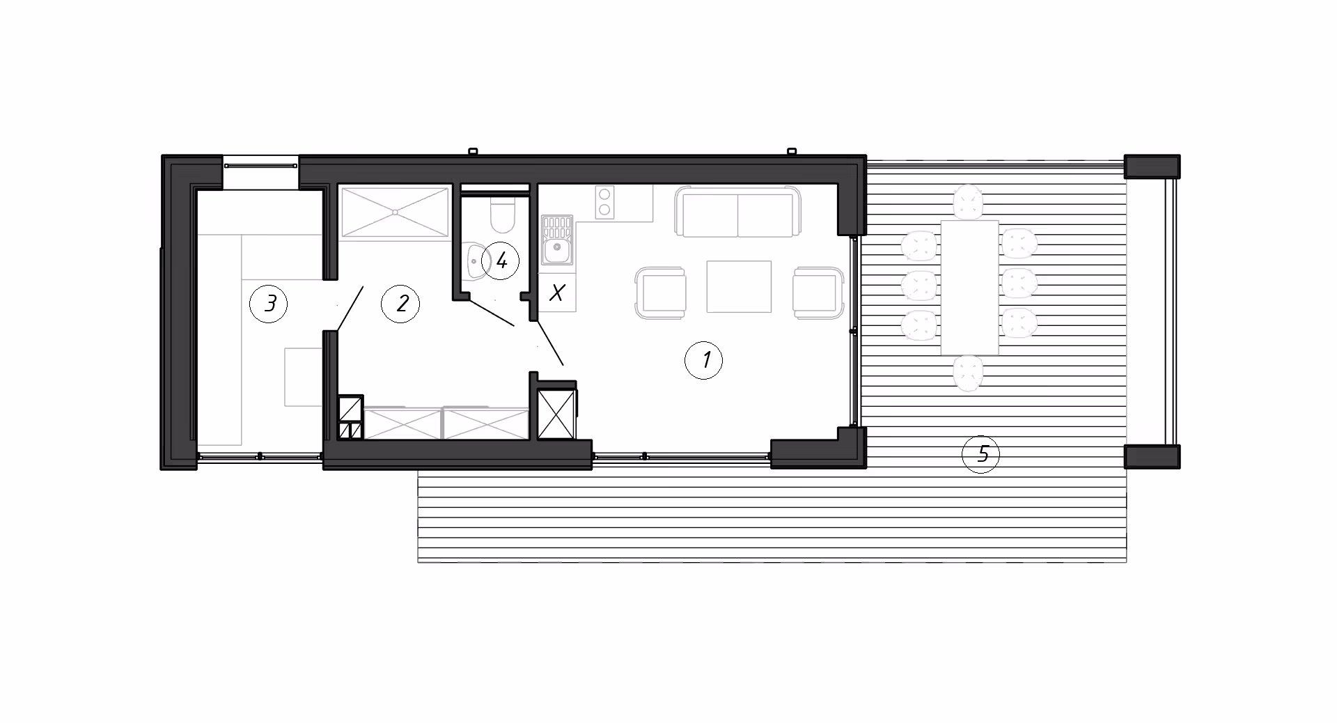
SPA-комплекс

1. Комната отдыха - 18.7м2

2. Помывочная - 9.8м2

3. Парильное отделение - 7.7м2

4. Санузел - 1.8м2

5. Терраса - 11.0м2

Итого:- 49м2

Дизайн

Дизайн-проект DS238&SPA

Консультация
по индивидуальному
проектированию.

Или позвоните нам сами +375296283628

Похожие решения.

Загородный дом Hi203
203m2, 5 комнат, 1 этаж
Загородный дом Hi217 ind.
217m2, 5 комнат, 1 этаж
Загородный дом Hi232
232m2, 6 комнат, 1 этаж
Загородный дом Hi256 ind.
256m2, 4 комнаты, 1 этаж