Загородный дом Hi212

Загородный дом Hi212 — двухэтажный дом с пятью комнатами

Архитектура

Проект двухэтажного дома в брутальном черном цвете для истинных ценителей минимализма! Простые геометрические формы с черной штукатуркой смягчаются вставками из реечных панелей шоколадного оттенка.

О проекте

  • Площадь - 212м2
  • Количество комнат - 5 комнат
  • Этажность - 2 этажа

Особое внимание уделено компоновке пространства: на первом этаже расположены большая кухня-гостиная с окнами в пол и выходом на террасу, а также жилой блок с двумя спальнями и кабинетом.

Второй этаж - это уединения часть дома, включающая большую мастер спальню со своим гардеробом, санузлом и выходом на террасу а так же отдельно стоящую постирочную.

Планировка

1 этаж

1. Прихожая - 6.8м2

2. Гардеробная - 7.3м2

3. Котельная - 5.9м2

4. Коридор - 18.1м2

5. Кухня-гостиная - 48.1м2

6. Лестница - 5.0м2

7. Санузел - 8.7м2

8. Гостевая спальня - 14.4м2

9. Кабинет - 12.8м2

10. Спальня - 11.8м2

11. Хоз. постройка - 12.8м2

12. Терраса - 7.7м2

Итого:- 159.4м2

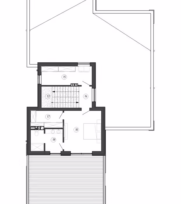
2 этаж

1. Лестница - 10.1м2

2. Коридор - 3.5м2

3. Постирочная - 12.0м2

4. Мастер-спальня - 19.0м2

5. Гардеробная - 6.7м2

6. Санузел - 8.7м2

Итого:- 60м2

Консультация
по индивидуальному
проектированию.

Или позвоните нам сами +375296283628

Похожие решения.

Загородный дом Hi231
231m2, 6 комнат, 2 этажа
Загородный дом Hi202
202m2, 5 комнат, 2 этажа
Загородный дом Hi213 ind.
213m2, 3 комнаты, 2 этажа
Загородный дом Hi224&SPA.
224m2, 5 комнат, 2 этажа