Загородный дом Hi153

Загородный дом Hi153 — дом в скандинавском стиле с вторым светом

Архитектура

Дом в скандинавском стиле, который отлично впишется в участок с выраженным рельефом, водоемом, густым озеленением или вблизи бескрайних полей. Отличительными чертами является отделка из вертикального планкена, фальцевая кровля с крутыми скатами без свесов, а так же большое остекление со вторым светом.

О проекте

  • Площадь - 153м2
  • Количество комнат - 2 комнаты
  • Этажность - 2 этажа

Данный проект является пристраиваемой частью к реконструируемому дому, в котором останутся все технические помещения и зоны хранения.

В новом же объеме будут размещаться прихожая, гостевой санузел, большая кухня гостиная со вторым светом и мастер-спальня на втором этаже выходящая в общий объем гостиной.

При необходимости конфигурация здания может легко меняться за счет увеличения длины, что позволяет вместить любой набор помещений в зависимости от потребности клиента.

Аксонометрия

Планировка

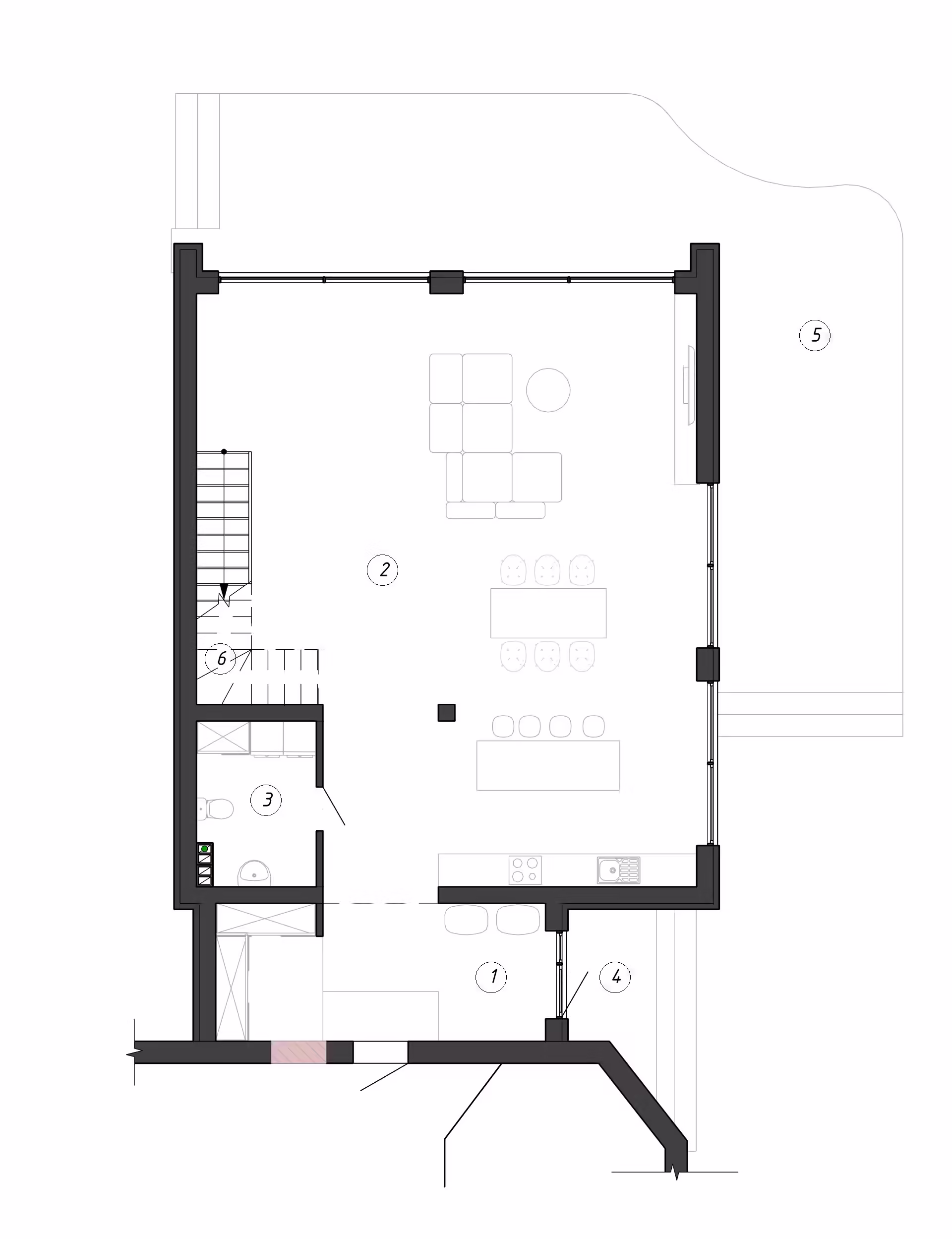
1 этаж

1. Прихожая - 14.9м2

2. Кухня-гостиная - 85.4м2

3. Санузел - 6.6м2

4. Крыльцо - 1.4м2

5. Терраса - 18.2м2

6. Лестница - 5.8м2

Итого:- 132.3м2

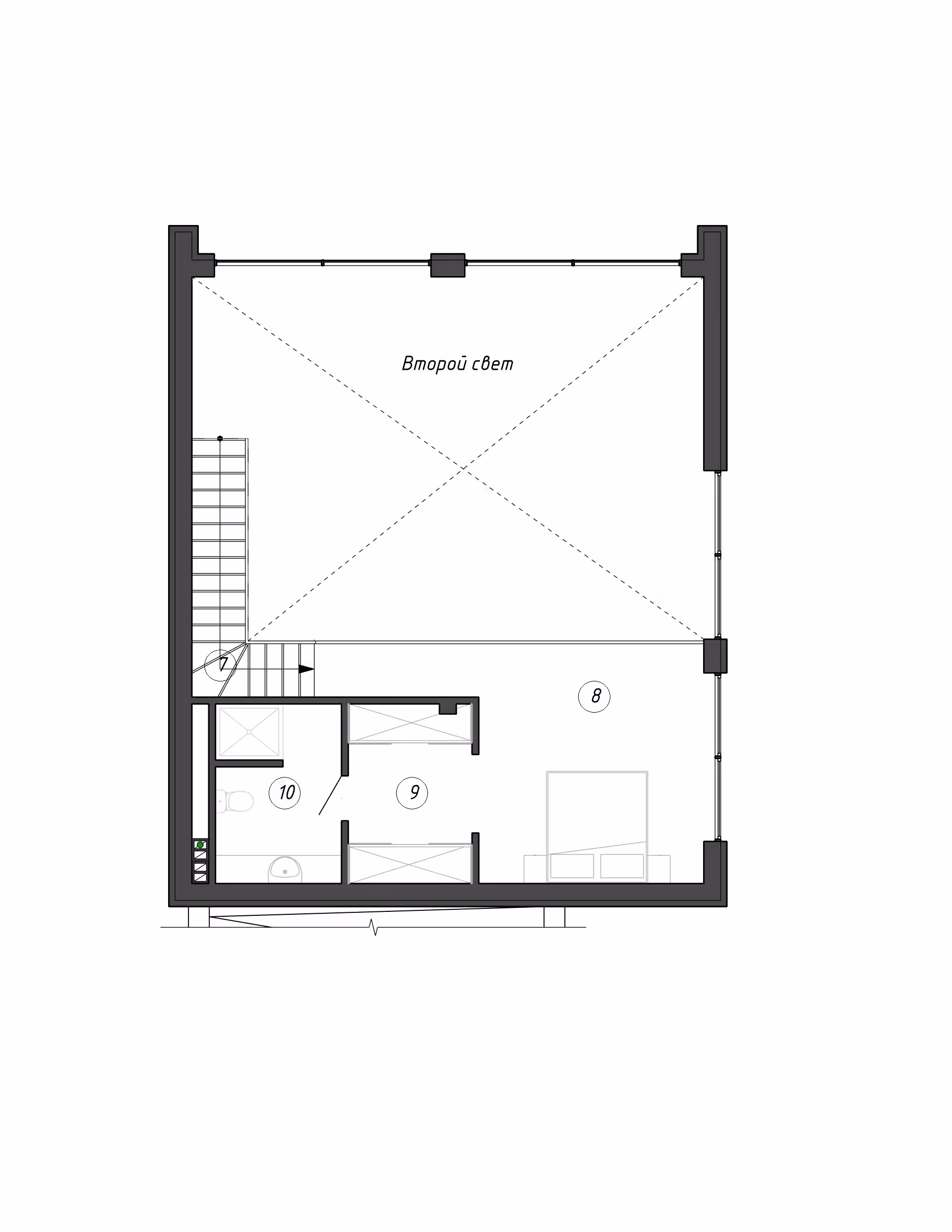
2 этаж

1. Лестница - 5.8м2

2. Спальня - 20.2м2

3. Гардеробная - 7.2м2

4. Санузел - 7.0м2

Итого:- 40.2м2

Консультация
по индивидуальному
проектированию.

Или позвоните нам сами +375296283628

Похожие решения.

Загородный дом Hi300&SPA
300m2, 4 комнаты, 2 этажа
Загородный дом Hi224&SPA.
224m2, 5 комнат, 2 этажа
Загородный дом Hi412&SPA
412m2, 6 комнат, 2 этажа
Загородный комплекс Hi525&SPA
525m2, 8 комнат, 2 этажа