Апарт-отель PANDAI

Апарт-отель Панда — апартаменты в центре Минска

Архитектура

Проект реконструкции отеля на острове Бали включал в себя несколько этапов: создание концепции, разработка типологии номеров и общественных пространств, формирование внешней композиции и проработка деталей экстерьера. В результате было достроено два этажа, увеличено количество номеров до 42, в комплексе размещены ресторан, кафе, бассейн, коворкинг, комната для подкастов, две зеленые кровли с зонами отдыха, и площадка BBQ. В отделке фасадов преобладает декоративная штукатурка в сочетании с латунными панелями и рейками, а так же активно применяется вертикальное озеленение.

О проекте

  • Площадь - 1933м2
  • Количество комнат - 42 комнат
  • Этажность - 4 этажа

Фасады

Планировка

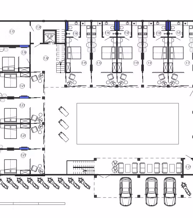
1 этаж

1. Коридор для подсобных помещений - 25.1м2

2. Помещение генераторной - 8.8м2

3. Кладовая для грязного белья - 9.7м2

4. Кладовая для чистого белья - 9.4м2

5. Кухонная кладовая - 9.7м2

6. Кухня - 34.4м2

7. Номер (комната) - 28.9м2

8. Санузел - 4.2м2

9. Номер (комната) - 29.0м2

10. Санузел - 4.2м2

11. Номер (комната) - 29.0м2

12. Санузел - 4.2м2

13. Номер (комната) - 29.0м2

14. Санузел - 4.2м2

15. Номер (комната) - 29.0м2

16. Санузел - 4.2м2

17. Комната уборочного инвентаря - 18.0м2

18. Служебный санузел - 7.8м2

19. Номер (комната) - 22.2м2

20. Санузел - 4.1м2

21. Номер (комната) - 30.9м2

22. Санузел - 4.2м2

23. Номер (комната) - 32.0м2

24. Санузел - 4.1м2

25. Номер (комната) - 32.9м2

26. Санузел - 4.2м2

27. Номер (комната) - 33.9м2

28. Санузел - 4.1м2

29. Кладовая - 12.1м2

30. Лифт - 3.0м2

31. Входная галерея - 27.5м2

32. Санузел - 3.2м2

Итого:- 507.2м2

2 этаж

1. Зона лестницы - 37.0м2

2. Лифт - 3.0м2

3. Коридор - 24.1м2

4. Кухня - 39.4м2

5. Кафе - 47.8м2

6. Зал ресторана - 79.2м2

7. Номер (комната) - 24.8м2

8. Санузел - 3.7м2

9. Номер (комната) - 24.8м2

10. Санузел - 3.7м2

11. Номер (комната) - 24.8м2

12. Санузел - 3.7м2

13. Номер (комната) - 24.8м2

14. Санузел - 3.7м2

15. Номер (комната) - 24.8м2

16. Санузел - 3.7м2

17. Номер (комната) - 17.4м2

18. Санузел - 3.7м2

19. Номер (комната) - 24.9м2

20. Санузел - 3.7м2

21. Номер (комната) - 24.8м2

22. Санузел - 3.7м2

23. Номер (комната) - 24.8м2

24. Санузел - 3.7м2

25. Номер (комната) - 24.8м2

26. Санузел - 3.7м2

27. Номер (комната) - 42.4м2

28. Кладовая - 5.1м2

29. Комната уборочного инвентаря - 10.0м2

30. Санузел - 4.0м2

31. Серверная комната - 7.0м2

Итого:- 576.7м2

3 этаж

1. Зона лестницы - 39.0м2

2. Номер (комната) - 23.4м2

3. Санузел - 3.9м2

4. Номер (комната) - 22.5м2

5. Санузел - 3.9м2

6. Номер (комната) - 22.5м2

7. Санузел - 3.9м2

8. Номер (комната) - 22.5м2

9. Санузел - 3.9м2

10. Номер (комната) - 22.5м2

11. Санузел - 3.9м2

12. Номер (комната) - 22.5м2

13. Санузел - 3.9м2

14. Номер (комната) - 28.0м2

15. Санузел - 3.7м2

16. Номер (комната) - 27.8м2

17. Санузел - 3.8м2

18. Номер (комната) - 28.0м2

19. Санузел - 3.7м2

20. Номер (комната) - 27.8м2

21. Санузел - 3.8м2

22. Номер (комната) - 29.6м2

23. Санузел - 3.7м2

24. Коридор - 23.7м2

25. Коридор - 17.8м2

26. Лифт - 3.0м2

27. Комната уборочного инвентаря - 9.2м2

28. Комната для подкастов - 10.3м2

Итого:- 422.2м2

4 этаж

1. Зона лестницы - 39.5м2

2. Номер (комната) - 23.8м2

3. Санузел - 3.9м2

4. Номер (комната) - 22.9м2

5. Санузел - 3.9м2

6. Номер (комната) - 22.9м2

7. Санузел - 3.9м2

8. Номер (комната) - 22.9м2

9. Санузел - 3.9м2

10. Номер (комната) - 22.9м2

11. Санузел - 3.9м2

12. Номер (комната) - 22.9м2

13. Санузел - 3.9м2

14. Номер (комната) - 28.1м2

15. Санузел - 3.7м2

16. Номер (комната) - 28.1м2

17. Санузел - 3.7м2

18. Номер (комната) - 28.1м2

19. Санузел - 3.7м2

20. Номер (комната) - 28.1м2

21. Санузел - 3.7м2

22. Номер (комната) - 29.9м2

23. Санузел - 3.7м2

24. Коридор - 21.2м2

25. Коридор - 17.3м2

26. Лифт - 3.0м2

27. Комната уборочного инвентаря - 21.8м2

Итого:- 425.3м2

Консультация
по индивидуальному
проектированию.

Или позвоните нам сами +375296283628